Zum Kauf
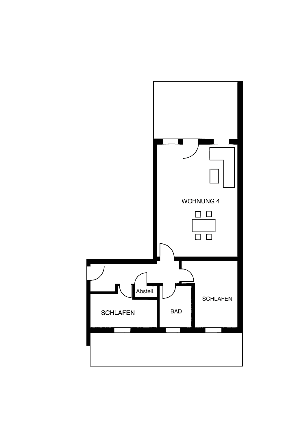
Neubau: Moderne 3½-Zimmer-Wohnung mit großer Terrasse in Aalen-Ebnat (Wohnung 4)
3,5Zimmer
1Badezimmer
92,61qm
460.900 €
Ihr neues Zuhause in Aalen-Ebnat. Moderne 3½-Zimmer-Wohnung mit großer Terrasse – KfW 55 EE – Fertigstellung Ende 2026 Willkommen in Ihrem neuen Zuhause – wo modernes Design, energieeffiziente Bauweise und hoher Wohnkomfort perfekt harmonieren. In ruhiger, gewachsener Lage von Aalen-Ebnat entsteht ein stilvolles Mehrfamilienhaus mit nur 14 Wohneinheiten, das durch klare Architektur, hochwertige Materialien und nachhaltige Technik überzeugt. Die hier angebotene 3½-Zimmer-Wohnung im Erdgeschoss bietet Ihnen auf ca. 92,6 m² Wohnfläche ein großzügiges Raumgefühl, lichtdurchflutete Räume und eine große Westterrasse für sonnige Stunden. Ideal für Paare, anspruchsvolle Singles oder kleine Familien, die Wert auf Qualität und Nachhaltigkeit legen. Wohnkomfort & Ausstattung: -Großzügige Terrasse mit Westausrichtung und geschützter Brüstung -Stufenloser Zugang vom Hauseingang bis zur Wohnung – ideal auch für später -Fußbodenheizung in allen Räumen für behagliche Wärme -Bodenebene Dusche und modernes Bad-Design -Kellerraum inklusive -Waschmaschinenanschluss im Bad -Tiefgaragenstellplatz optional zum Preis von 21.000 € -Hochwertige Bodenbeläge und Ausstattung nach Wahl Nachhaltige Energie & Gebäudetechnik (KfW 55 EE) Das gesamte Gebäude erfüllt den KfW-55-EE-Energiestandard – ein Garant für niedrige Betriebskosten und zukunftssichere Technik. -Massive Ziegelbauweise für ein gesundes Raumklima -Wärmepumpe in Kombination mit Photovoltaikanlage für den Grundlastbetrieb -Gas-Brennwertgerät für Spitzenlasten – effiziente Unterstützung bei höchstem Wärmebedarf -Dreifachverglasung und exzellente Wärmedämmung -Endenergiebedarf nur 17,3 kWh/(m²·a) – besonders niedrige Nebenkosten -Aufzug von der Tiefgarage bis in jede Etage Diese durchdachte Kombination sorgt nicht nur für maximalen Wohnkomfort, sondern auch für hervorragende Energieeffizienz – ein echter Pluspunkt für Umwelt und Geldbeutel. Lage & Umfeld Aalen-Ebnat – ein beliebter Stadtteil der Großen Kreisstadt Aalen – bietet ruhiges Wohnen im Grünen mit bester Infrastruktur: -Einkaufsmöglichkeiten, Ärzte, Apotheken, Schulen und Kindergärten im Ort -Kurze Wege zu Sportanlagen, Natur- und Freizeitmöglichkeiten -Optimale Verkehrsanbindung über A7, B19 und B29 -Ulm, Heidenheim, Nördlingen und Stuttgart bequem erreichbar -Bahnhof Aalen mit Anschluss an das regionale Bahnnetz Die Lage vereint ländliche Ruhe mit städtischer Nähe – perfekt für alle, die entspannt leben und dennoch gut angebunden sein möchten. Fakten auf einen Blick -Wohnfläche: ca. 92,6 m² -Zimmer: 3½ -Terrasse: große Westterrasse -Energieeffizienz: KfW 55 EE (Endenergiebedarf 17,3 kWh/m²·a) -Bauweise: massive Ziegelbauweise -Aufzug & Tiefgarage: vorhanden -Kaufpreis Wohnung: 460.900 € (≈ 4.980 €/m²) -Tiefgaragenstellplatz: 21.000 € (optional) -Baubeginn: Mai 2025 -Bezugsfertig: Dezember 2026 Adresse: 73432 Aalen-Ebnat (genau Adresse auf Anfrage) Ihr Vorteil Hier investieren Sie in Qualität, Nachhaltigkeit und Zukunftssicherheit. Ob als Eigenheim oder Kapitalanlage – diese Wohnung bietet durch ihre Lage, Ausstattung und Energieeffizienz langfristige Wertbeständigkeit. Kontakt Fordern Sie jetzt Ihr ausführliches Exposé mit Grundrissen, Baubeschreibung und Preisliste an. Wir freuen uns darauf, Ihnen dieses attraktive Neubauprojekt persönlich vorzustellen.
Größe
92,61qm
Baujahr
2025
Grundriss
0
Zimmeranzahl
3,5
Badezimmer
1
Stellplatz
1



